© Gemeente Katwijk
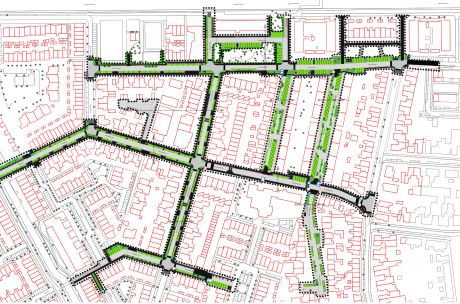
Het verdwijnen van parkeerplaatsen, een versmalling van de Witte de Withstraat en beperkt mogelijkheid om nog iets aan herinrichtingsplannen van de gemeente te doen: de kritiek was niet mals tijdens een participatieavond voor bewoners van de Zeeheldenbuurt in Rijnsburg, eerder deze maand.
VVD-fractievoorzitter Lennart van der Plas: “We zagen het al rond het referendum tegen de forse uitbreiding van het betaald parkerengebied, we zien het in andere delen van onze dorpen én mogelijk wordt het ook werkelijkheid in de Zeeheldenbuurt: het bewust sturen vanuit de gemeente om het autogebruik te beperken.”
“Helaas lijken de plannen voor de Zeeheldenbuurt hier weer een voorbeeld van. Des te frustrerender dat bewoners weinig ruimte lijken te krijgen hier nog iets aan te doen. Ook dit zien we helaas vaker, zoals onlangs bij het Hof van Rijnsburg waar de parkeercapaciteit óók werd verminderd en bewoners hier in eerste instantie niet meer over mochten meespreken.”
De VVD blijft zich in de hele gemeente verzetten tegen de beperking van het autogebruik, en wil dat er voldoende parkeerplaatsen zijn en blijven. Hoewel het college van DURF, SGP en ChristenUnie hier anders naar kijkt, proberen we er alles aan te doen om dit ‘anti-autobeleid’ een halt toe te roepen.